Projet Architecture Bachelor 1 "LESS IS MOTTO"

minia

Nos étudiants de première année de Bachelor ont eu l'opportunité de travailler sur un projet d'aménagement et de rénovation d'un appartement bordelais durant plusieurs mois.

 

Le projet LIM, 

Elaboré par Ombeline Bombail, Carla Nardi, et Jérémy Jobin, le projet proposé à nos étudiants consistait en la conception et la réalisation d'un espace de vie fonctionnel et esthétiquement plaisant dans un site patrimonial remarquable à Bordeaux. Le projet s'articulait autour de plusieurs phases de développement allant de l'analyse des besoins et des préférences stylistiques des clients à la création de plans détaillés et de maquettes.

Objectif : Créer un espace de vie qui combine fonctionnalité, esthétisme et respect du cadre patrimonial du site.

4

Besoins des Clients :

Comme pour tout projet un brief a été fait auprès de nos étudiants par un client ; le lieu se devait de permettre la mise en place de nombreux rangements, d'accueillir une cuisine fonctionnelle dans une ambiance lumineuse tamisée et variable en respectant les styles :

  • Minimalisme britannique
  • Style japonais (Japandi)
  • Élégance fonctionnelle
  • 1
  • 2
  • 3
  • 7

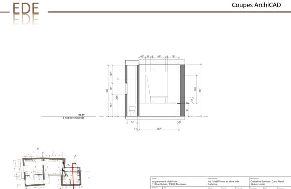
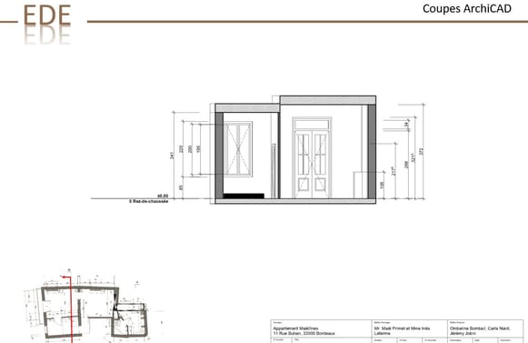
La réalisation du projet
 

Une analyse de l'existant a pu être réalisée par nos étudiants afin de connaître les contraintes du lieu.  Suite à cette analyse notre équipe projet a commencé la réalisation de plans ainsi que des maquettes très détaillées  pour établir un premier plan de travail et visualiser le projet tout en suivant les normes. Une sélection de meubles, éléments décoratifs a pu suivre cette étape cruciale. 

Ce projet a mis en lumière l'expertise et la créativité de nos étudiants de première année de Bachelor dans la réalisation d'un espace de vie moderne et fonctionnel, tout en respectant les contraintes d'un site patrimonial.

10
  • 5
  • 6
  • 8
  • 9
  • 10
  • 11
  • 12